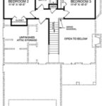
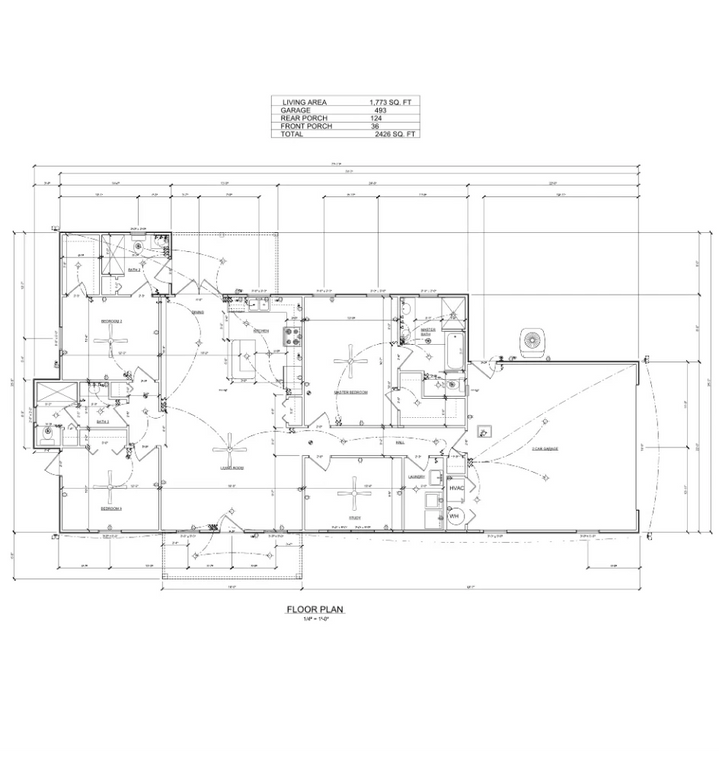
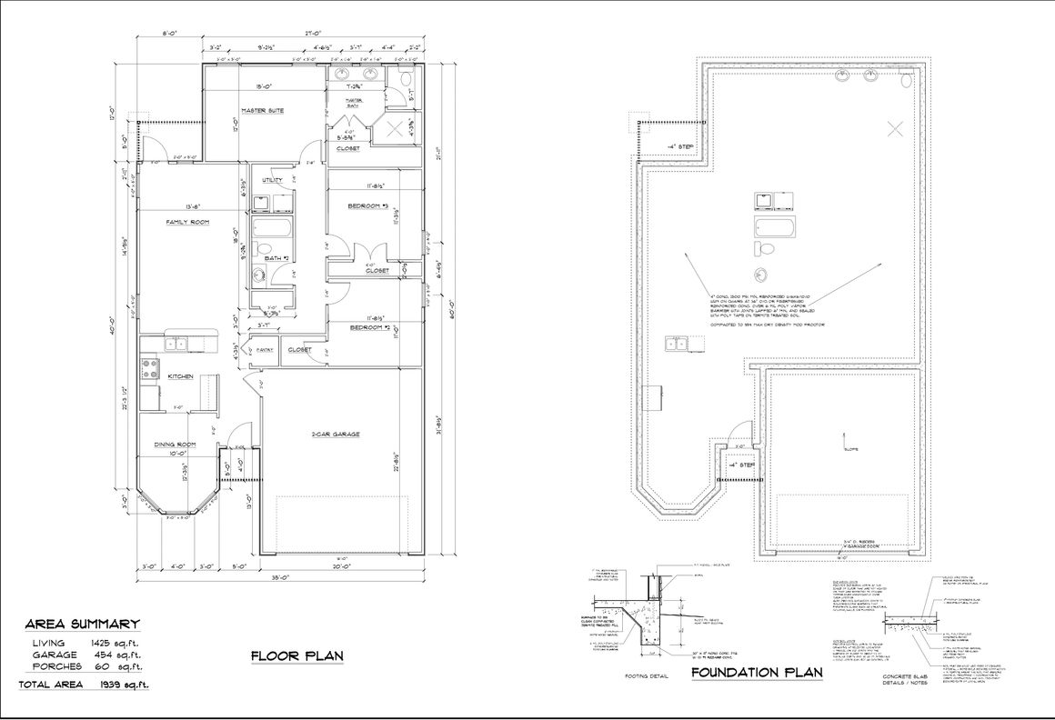
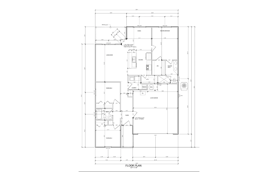
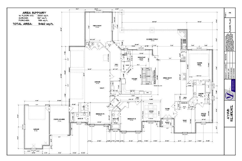
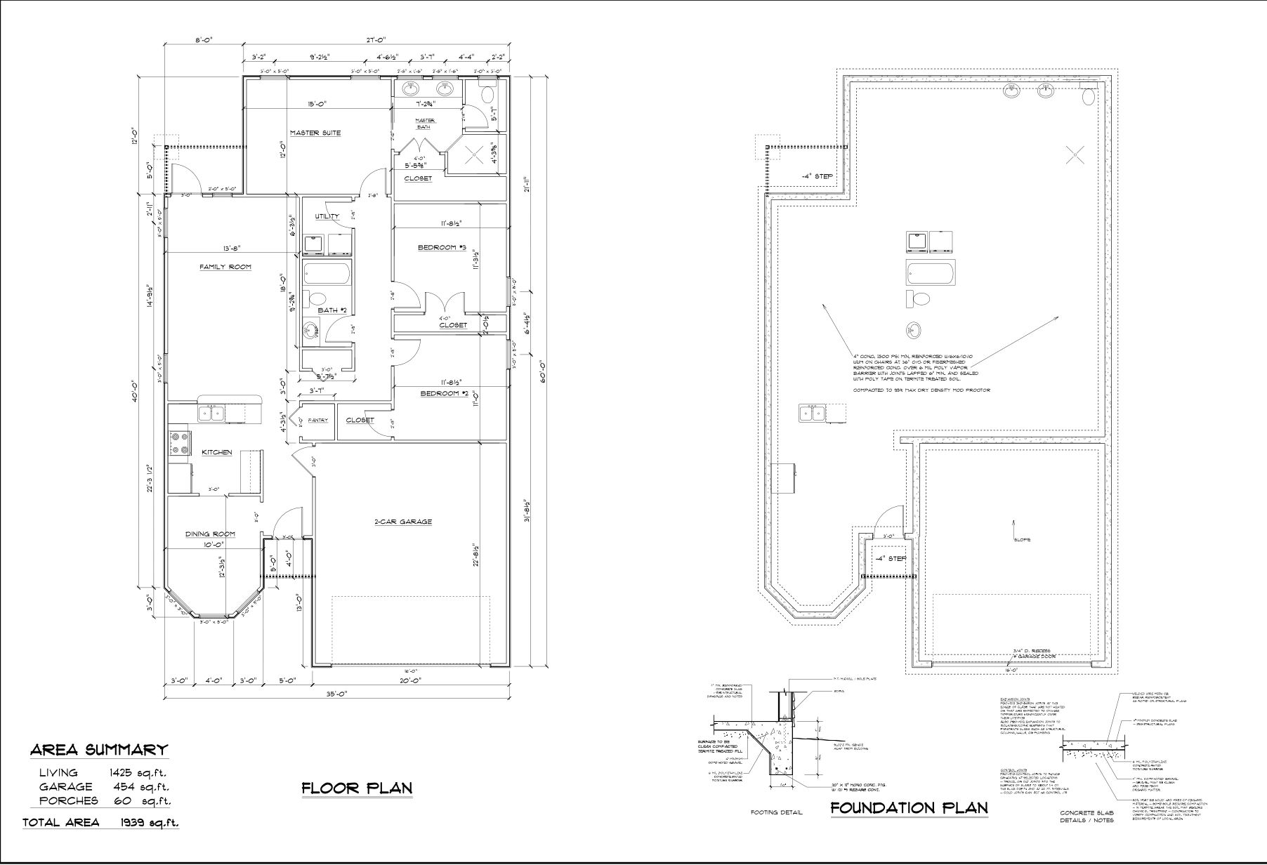
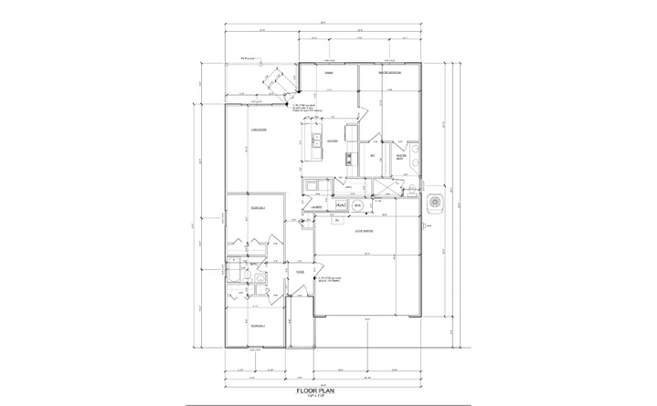
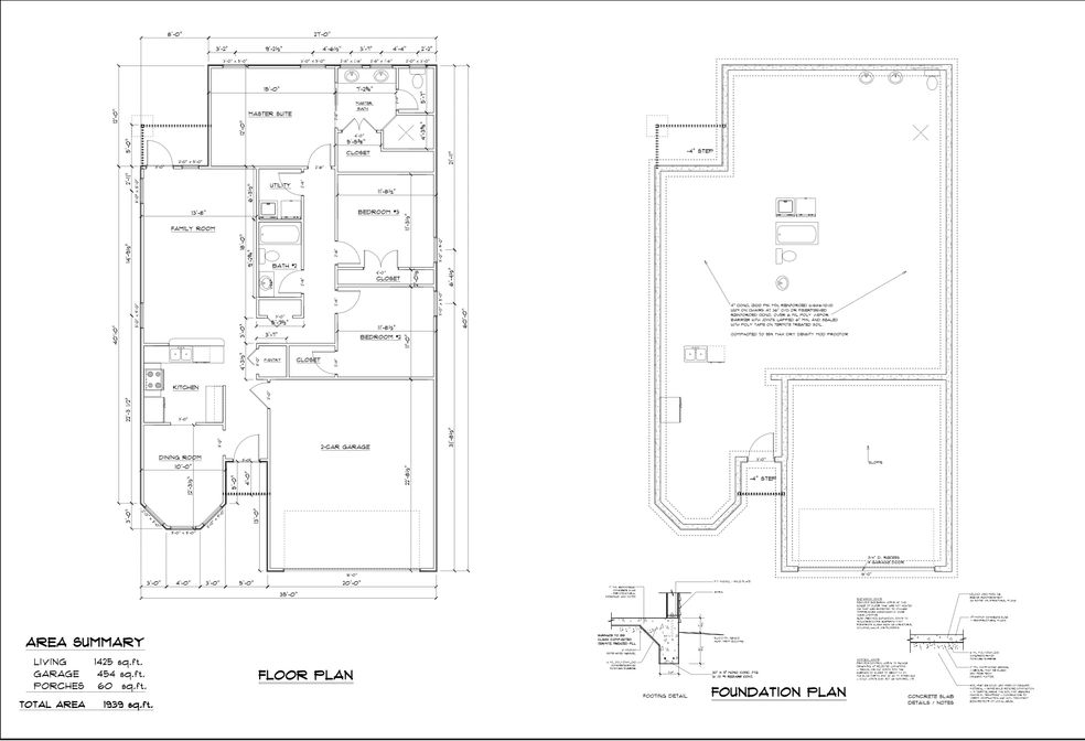
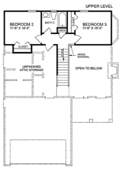
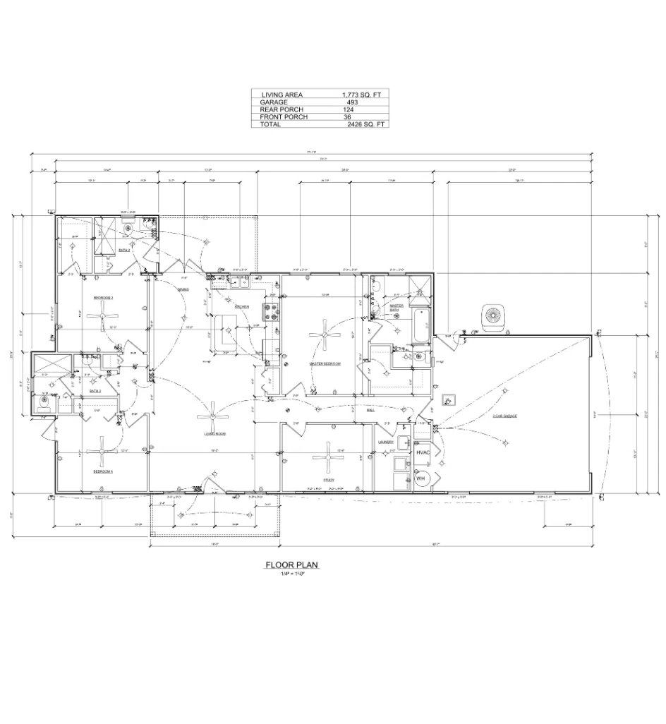
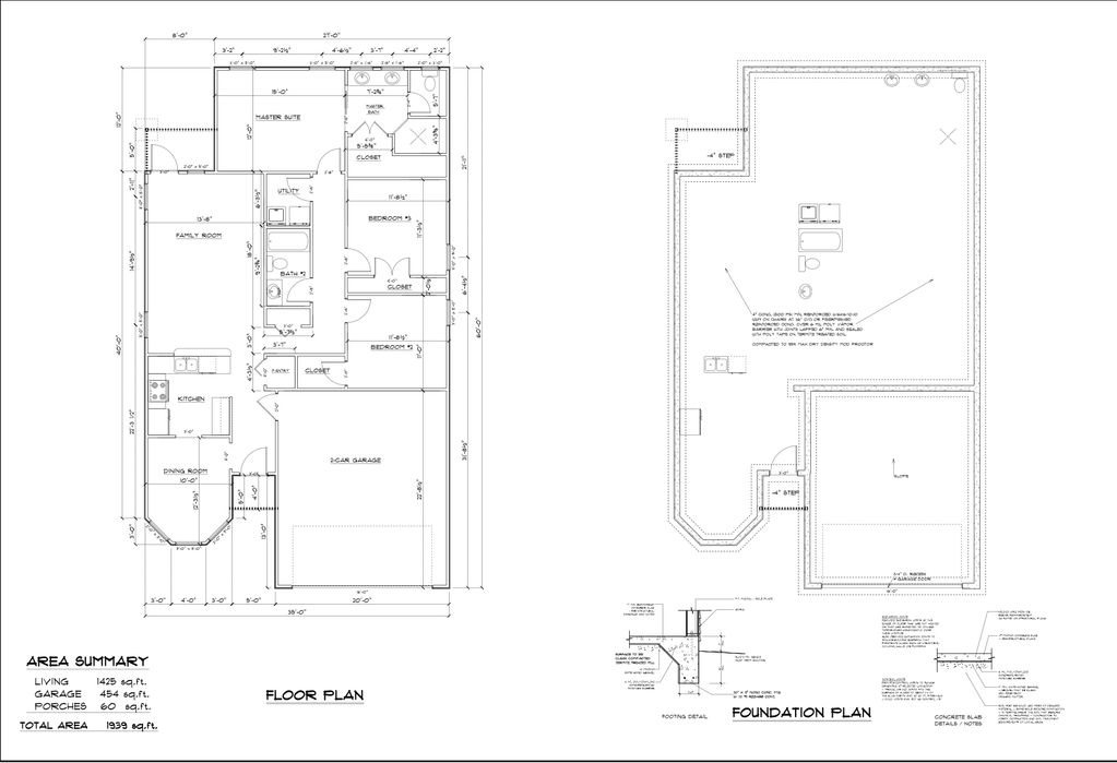
Floor Plans
Discover Thoughtfully Designed Spaces Built for Real Life
At Ayoub Construction Corp, we believe great homes start with great planning. Our floor plans are crafted to maximize space, enhance comfort, and meet the unique needs of modern families, professionals, and property investors.























